中华品牌之家欢迎您~!
设为首页
厌倦了传统中式的厚重?又偏爱东方美学的韵味?本期为您带来由轩怡家装在广东地区完美落地的一套140㎡新中式设计案例。我们以整装服务为核心,将轻盈简约与现代功能融入家居空间,为您展示理想家的落地效果。
项目信息
地点:东莞市
小区:云瑞府
户型:140㎡三房两厅
风格:新中式风格


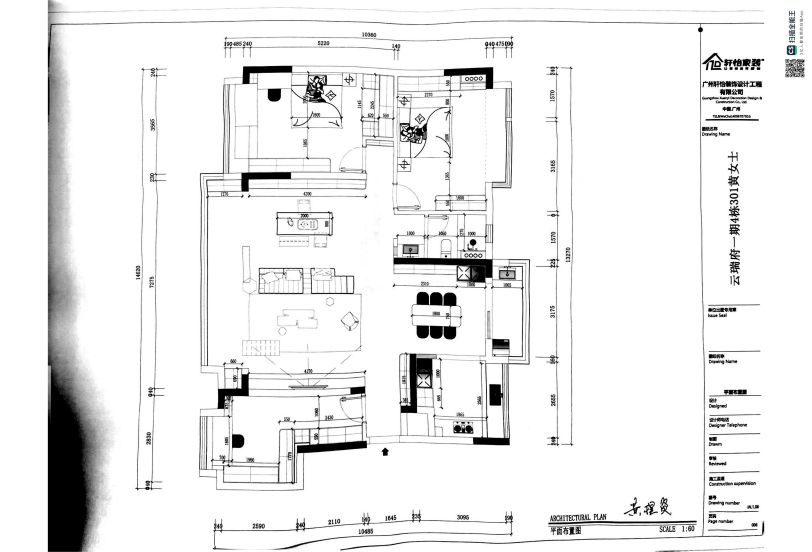
一、客厅+茶室:通透公区,诠释轻盈新中式设计
在广东装修中,通透与采光是重中之重。本案公区采用全屋通铺木地板,并将阳台打通,瞬间引光入室,空间感倍增。无主灯设计进一步拉高视觉层高,奠定开阔基调。
家具是新中式设计的灵魂。区别于传统的笨重感,轩怡家装精选了线条纤细、带有镂空元素的实木家具,在保留温润质感的同时,营造出独有的轻盈与通透感。

沙发后方无缝衔接一个开放式茶室。实木茶桌彰显大气,与客厅形成流畅的互动格局。茶室背景墙打造了整墙定制柜,收纳能力极强。

中部开放式展架以古典画作为背景,与电视墙的《清明上河图》遥相呼应,完美体现了轩怡家装对文化底蕴与实用功能的兼顾,落地效果令人赞叹。

二、餐厨空间:功能至上,演绎现代中式生活美学
餐厅与客厅对立而设,延续了公区的通透理念。轩怡家装选用的实木餐桌椅同样以轻巧造型取胜,让用餐氛围更具现代韵味。

整墙的餐边柜采用嵌入式定制设计,将大冰箱完美嵌入,解决了广东装修中常见的收纳痛点。

厨房采用透明推拉门,有效隔绝油烟却不阻隔光线,内部L型操作动线流畅,配合大窗户,打造出明亮洁净的下厨环境,这正是整装模式对细节把控的体现。

三、主卧:简约雅致,定制收纳提升居住品质
主卧摒弃繁杂装饰,以大面积的窗户保障采光与通风。轩怡家装通过整墙定制衣柜和窗台抽屉的设计,将收纳空间最大化,落地效果整洁而统一。空间内的两盏葫芦造型吊灯成为点睛之笔,为新中式空间注入一丝灵动的趣味。

四、次卧:经济实用,延续整体设计语言
次卧延续了主卧的新中式设计风格。为控制预算,采用了嵌入式衣柜与门帘的组合,成本更低且收纳力不减。另一侧设计的透明玻璃展柜,兼具储物与展示功能,美观且实用,非常适合作为儿童房或客房。

五、独立衣帽间:定制化整装,满足终极收纳梦想
轩怡家装将一间小次卧单独改造为独立衣帽间,通过专业的定制设计,提供了超强的集中储物能力,完美解决了家庭的衣物收纳难题,这也是选择整装服务的优势所在。

六、卫生间:干湿分离,实现高效多功能使用
卫生间实现了三分离布局,可同时满足多人使用,大大提升了生活效率。轩怡家装在整装过程中对卫浴空间的精细规划,确保了落地效果的实用与耐用。
