中华品牌之家欢迎您~!
设为首页
一个124m²的家如何通过装修实现身心疗愈?轩怡家装设计师以简约奶油风装修定调,巧妙平衡结构,将通透感与收纳力融入日常。整个空间在简约奶油风的笔触下,褪去繁杂,专注于光影、线条与功能的融合,为渴望宁静与秩序的现代家庭提供了极具参考价值的范本。

·案例信息
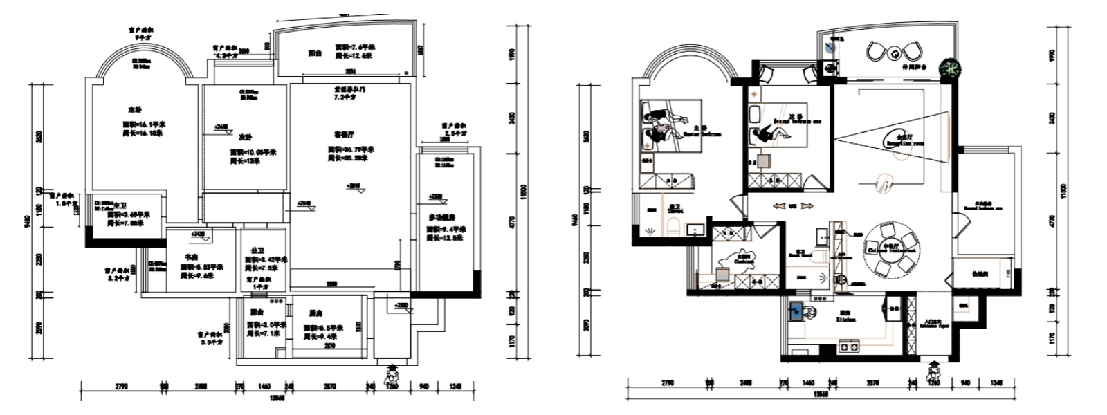
地点:广州 小区:骏景花园 户型:124m² 4房2厅 风格:简约奶油风
·设计亮点
①多功能房切出一部分空间做收纳间,减轻收纳压力,保持公区整洁;
②小阳台合入厨房,扩展空间,令日常烹饪更自如;
③调整主卫门位置,过道宽敞,起居动线更舒适。
一客厅:以光影和线条,勾勒简约奶油风的通透骨架

空间的精髓在于格局。设计师通过顶面连通、地面通铺的一体化手法,发挥竖厅优势,奠定了简约奶油风开阔明亮的基调。客厅与阳台的贯通处理,摒弃了常规封闭,使之成为一个可自由呼吸的弹性区域,引景入室。

电视墙则上演了一场精妙的视觉对话:悬浮柜体与落地组合、浅木色与深棕色的碰撞,共同构建出层次感。一款沉稳的棕色沙发恰到好处地平衡了视觉重心,与电视墙形成张力,让整个奶油色调的空间不至轻飘,更显温润质感。
二餐厅:功能与美学共舞,升华奶油风生活场景

餐厅区域是简约奶油风实用美学的集中体现。色彩比例拿捏得当,将散落的物件和谐串联。曲线优美的风扇灯与挂钟,为利落的立面结构增添了几分灵动。

定制餐边柜是此处的亮点,它杂糅了储物、水吧、西厨等多种功能,提升了空间效率。设计师更在吊柜下方暗装灯带,这一贴心细节减淡台面阴影,在柔和的奶白基调中,确保了日常使用的便捷与舒适。
三厨房:量体裁衣的L型布局,延伸奶油风统一感

为了利用不规则空间,厨房采用了创新的L型+I型橱柜组合,形成了非传统U型布局,不仅让家电的安置与检修更为便利,也优化了烹饪动线。
橱柜色彩延续了公区的设计语言,采用上浅下深的搭配,浅浅勾勒出层次感,使厨房与其他功能区和谐相连,成为家中一个有机组成部分。
四卫生间:干湿分离,打造简约奶油风的洁净美学

卫生间虽小,却是对细节苛求的体现。设计师在干湿分离与通风性上寻求平衡。采用玻璃隔断取代传统的淋浴房,宽度经过精心计算,防止溅水,保留通透又巧妙避开插座区域。
五主卧:半墙与弧线,营造静谧奶油风休憩氛围

主卧是简约奶油风追求静谧,床头背景墙采用半墙木饰面设计,温润的材质与整体气质相呼应,将宁静氛围进一步深化。独特的弧形窗将视野扩大,揽入室外绿意。

主卫门的斜切处理让门、柜、顶面之间的过渡浑然天成,化解了原本结构的拥挤感,留出了宽敞过道,并借助一盏精致的壁灯,点亮了一个可观可品的温馨角落。
六 次卧:留白与规划,预留奶油风生长弹性

次卧延续了主卧的简约奶油风基调,但在细节上做了减法,摒弃过多装饰元素,留白给未来的入住者,让空间能随着时间沉淀出独属的个性。通
顶衣柜经过细致规划,内部布局长短结合、有屉有柜,为衣物收纳提供灵活的调度空间,体现了设计对未来生活需求的深刻洞察。
这个广州124m²的家诠释简约奶油风不仅是视觉上的温柔,更是功能上的周密考量。从公区的通透开阔到私区的细腻营造,设计师通过对线条、光影和材质的把控,将收纳功能巧妙隐藏于温润的奶油色表象之下,打造出既美观又极度实用的理想居所。